
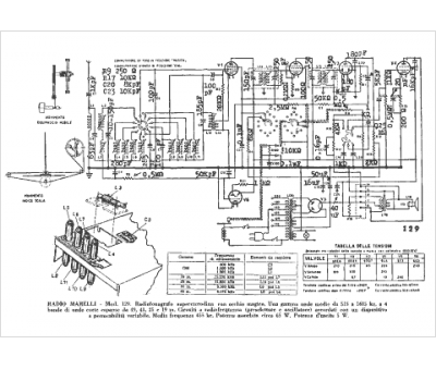
Marque :
Radiomarelli
Modèle :
129
Type appareil :
récepteur à tubes
Pays d'origine :
Italie
