
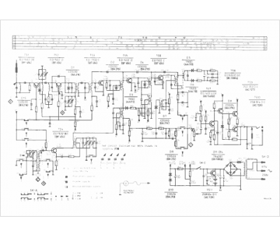
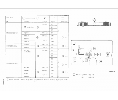
Marque :
Radiola
Modèle :
90 AL 380
Type appareil :
récepteur à tubes
Pays d'origine :
France
