
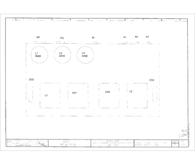
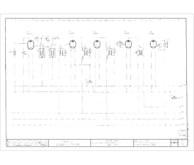
Marque :
Radio LL
Modèle :
3601 Super Baby
Type appareil :
récepteur à tubes
Pays d'origine :
France
