
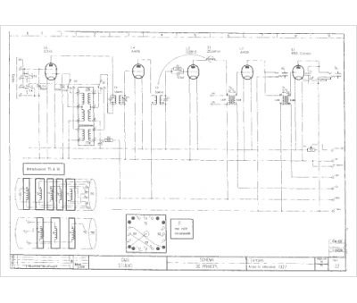
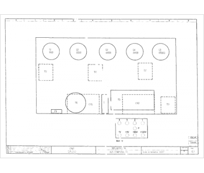
Marque :
GMR
Modèle :
Studio
Type appareil :
récepteur à tubes
Pays d'origine :
France
